BIỆT THỰ 1 TẦNG-3 PHÒNG NGỦ
Ngày đăng: 11:33 AM, 24/06/2020 - Lượt xem: 4.7k
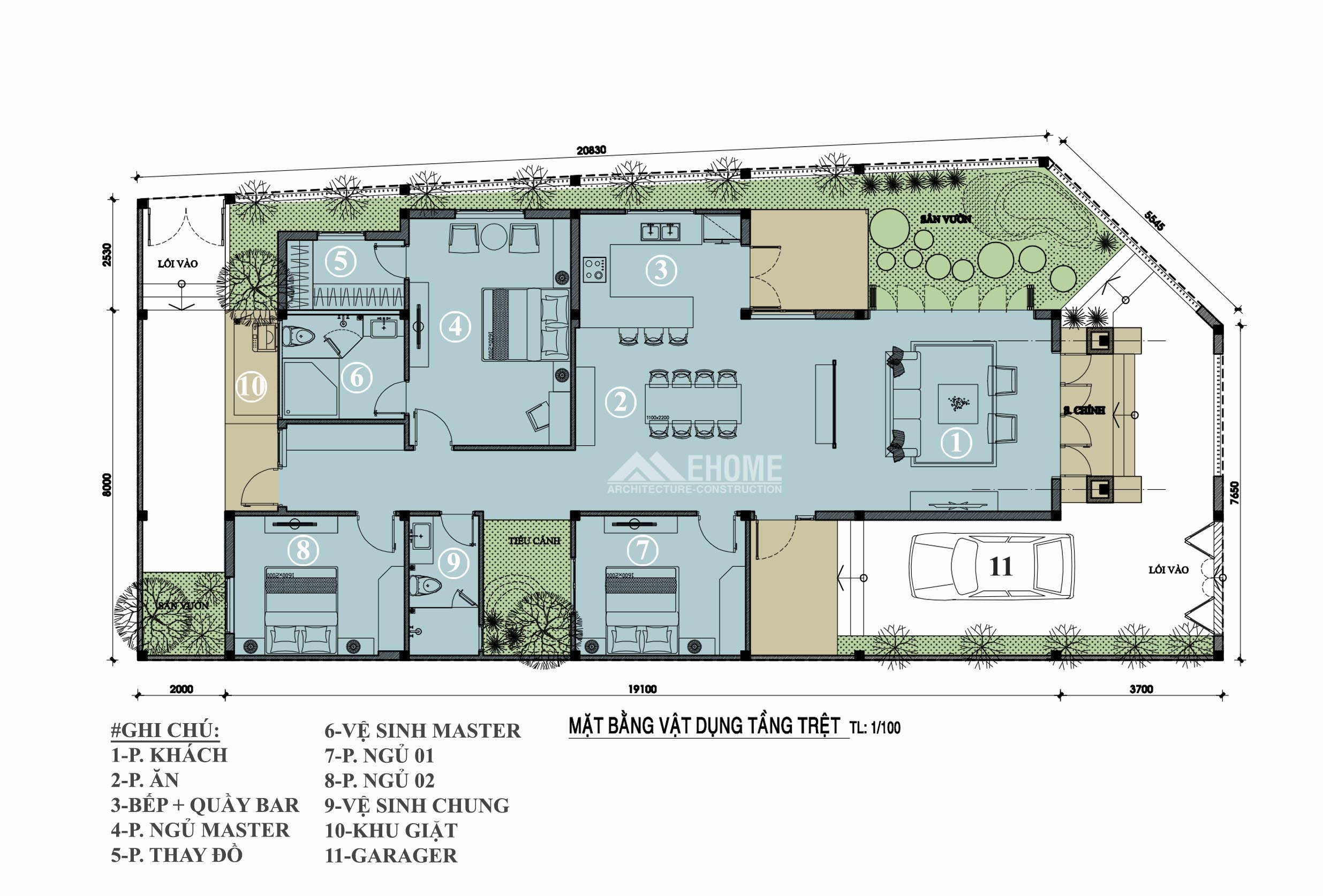
#Biệt Thự 1 Tầng - Mái Thái - Phong Cách Hiện Đại
#Qui Mô: DT Đất 300m2, DT Xây Dựng 150m2
#Thiết kế Mẫu Khu Dân Cư Hoa Đào - Bình Phước
#Địa điểm: Phước An - Hớn Quản -Bình Phước
Thiết kế chú trọng Công năng Sử Dụng
- Không Gian rộng rãi, thoáng Mát,
- Sân Vườn thiết kế bao xung quanh, và xem kẽ giữa các phòng bên trong nhà
- Phong cách TỐI GIẢN, thức Cột Vuông vức giúp cho Ngôi Nhà Nổi bậc trong không gian Cây Xanh xung quanh








PHỐI CẢNH ĐÊM LÀM NỔI BẬC SỰ SANG TRỌNG CỦA PHONG CÁCH TỐI GIẢN
THAM KHẢO MẪU NHÀ 1 TẦNG ĐẸP.!!!