Biệt thự 2 Tầng

Ngày đăng: 07:49 AM, 05/10/2022 - Lượt xem: 13.8k
Biệt thự 2 Tầng Mái Thái Thiết Kế Biệt thự 2 Tầng Hiện đại CĐT: Anh Đạt - Huyện Củ Chi - Tp Hcm

Qui mô Nhà Anh Đạt gồm:

#Tầng Trệt Phòng Khách, Bếp Ăn có Đảo Bếp, Garager.

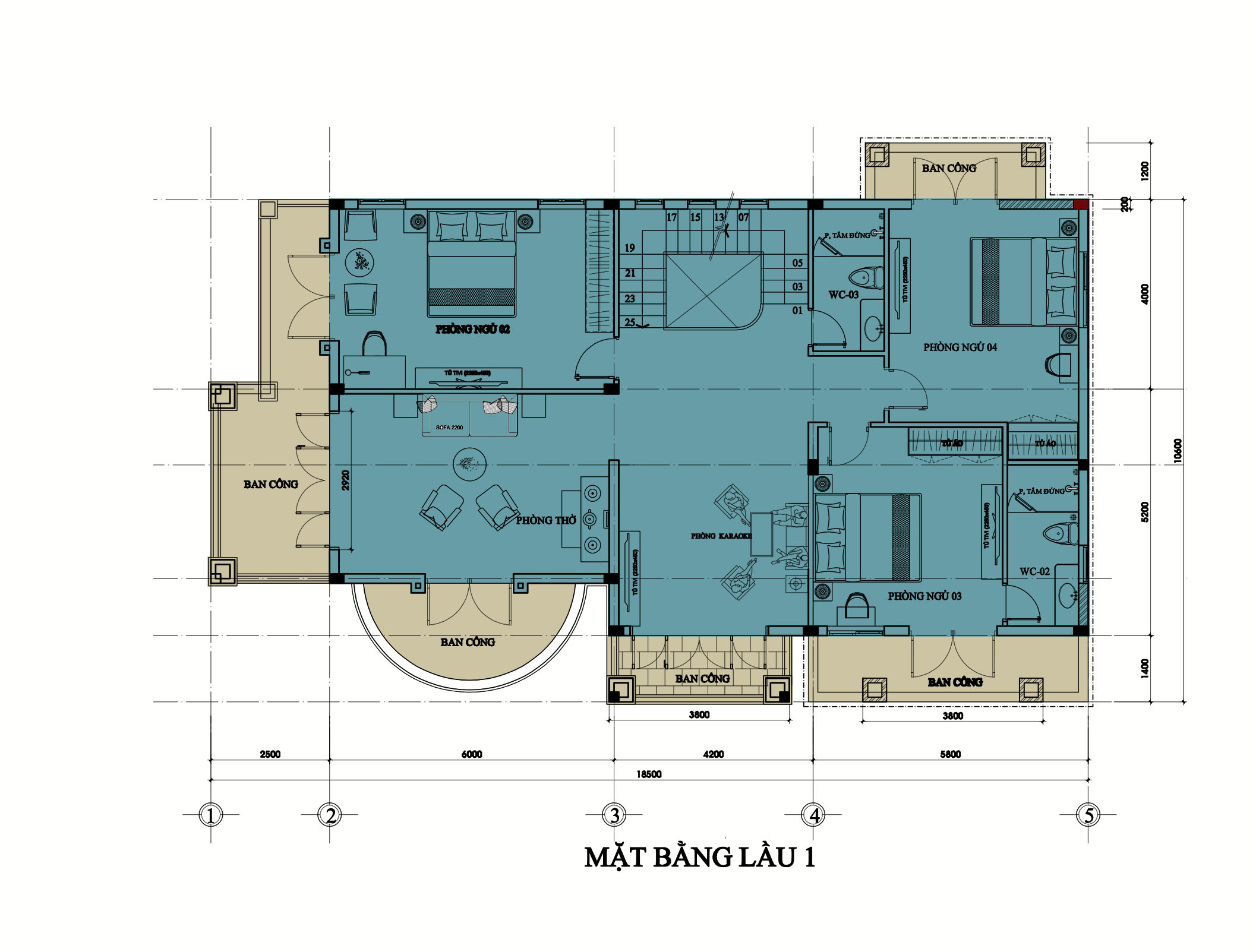
#Lầu 1 gồm Phòng Thờ, p. Sinh Hoạt Chung, 3 Phòng Ngủ, 2 wc

---- Nhà Biệt thự 2 tầng đẹp tham khảo thêm ở đây! Nhà Mái Thái 2 Mặt Tiền!

 

#Lầu 1 có 3 phòng Ngủ đều có Ban Công nhìn ra Sân vườn bên dưới rất đẹp mà còn tạo mái vòm che mái cho phòng ngủ, Mái Vòm trang trí và là điểm nhấn cho Ngôi Nhà.

 

# Tầng trệt Không gian Phòng Khách , Phòng Ăn, Nhà Bếp liên thông giúp ngôi nhà Thông thoáng không gian kết nối tốt khi sử dụng.

# Cầu Thang xoay ngang 45* có Tay trụ Cái 2 bên tạo điểm nhấn cho Phòng Khách.

 

 

#Nhà được Thiết kế với nhiều chi tiết Chỉ và Ốp Gạch trang trí, màu Vàng Đất tự nhiên bậc lên nhờ vào Vật liệu Trang trí.

#Chủ Nhà Thích mở nhiều Ban Công để làm nơi ngắm San vườn từ trên cao mà phòng nào cũng có.

#Để có ngôi nhà đẹp đôi khi Kiến Trúc Sư phải bảo vệ quan điểm Thiết kế của mình khi nhận thấy vật liệu Chủ nhà lựa chọn không phù hợp với Thiết kế.

# Sản Phẩm có đẹp hay không còn phụ thuộc vào chủ đầu tư có chịu theo KTS tới cùng hay không.

Xem thêm mẫu nhà Biệt thự 2 tầng đẹp tại đây nhé!

BIỆT THỰ NHÀ VƯỜN
Dự án

BIỆT THỰ NHÀ VƯỜN

03:40 AM, 14/11/2019
BIỆT THỰ NHÀ VƯỜN Chủ Đầu Tư: A Huy Địa điểm: Huyện Mỏ Cày Nam, Tỉnh Bến Tre Qui mô: Biệt Thự Nhà Vườn 1 tầng ,3 phòng ngủ, hồ bơi, nhà khách Phong cách: Ngôi nhà mang phong cách Tân Cổ Điển
Thiết kế biệt thự quận 9
Dự án

Thiết kế biệt thự quận 9

01:53 AM, 24/10/2019
Thiết kế thi công Biệt Thự Quận 9 Địa chỉ : Quận 9, TP.HCM Hạng mục: Thiết kế thi công Biệt thự Đơn vị: Ehomearch.vn
BIỆT THỰ - VĨNH PHÚC
Dự án

BIỆT THỰ - VĨNH PHÚC

07:59 AM, 25/04/2025
BIỆT THỰ - VĨNH PHÚC ĐỊA ĐIỂM: TỈNH VĨNH PHÚC QUI MÔ: 1 TRỆT, 1 LẦU, 4 PHÒNG NGỦ DIỆN TÍCH XD: 12X12m, DIỆN TÍCH ĐẤT 16X30m PHONG CÁCH: BIỆT THỰ MÁI NHẬT
Biệt thự 1 tầng mái nhật
Dự án

Biệt thự 1 tầng mái nhật

11:27 AM, 06/12/2023
Biệt thự 1 tầng mái nhật Chủ đầu tư: Anh Thành Địa điểm xây dựng: Tỉnh Long An Qui mô: diện tích xây dựng 160m2