Nhà cấp 4 được hiểu là nhà 1 tầng vì thế các phòng được bố trí cùng một không gian, vậy nên việc sắp xếp, cách bố trí các phòng trong nhà cấp 4 đảm bảo được công năng, tối ưu diện tích, đảm bảo sự thông thoáng sẽ giúp các thành viên cảm nhận được sự thoải mái nhất nhất.
Cách bố trí các phòng trong nhà cấp 4
Nếu như mặt tiền ảnh hưởng nhiều đến thẩm mỹ thì bên trong ngôi nhà ngoài thẩm mỹ còn phụ thuộc rất nhiều vào công năng, khi các phòng trong một diện tích nhỏ đòi hỏi phải tính toán kỹ lưỡng để vừa đảm bảo không gian sinh hoạt chung vừa cảm nhận được sự riêng tư thoải mái. Vì thế bài viết dưới đây sẽ chỉ ra cách bố trí các phòng trong nhà cấp 4 hợp lý để các gia chủ có thể tham khảo.
Xem xét kỹ diện tích sử dụng của nhà cấp 4
Cần nắm rõ diện tích sử dụng của nhà mình là bao nhiêu từ đó mới dễ dàng lên phương án sắp xếp, bố trí không gian phù hợp. Mỗi ngôi nhà thường có diện tích khác nhau vì thế phương án bố trí nội thất, phân chia không gian cũng riêng biệt.
Xác định nhu cầu để bố trí các phòng trong nhà cấp 4
Ví dụ bạn cần nhà cấp 4 bao nhiêu phòng ngủ, bao gồm bao nhiêu WC, có cần phòng thờ hay không… từ đó để phân chia không gian cho phù hợp với nhu cầu. Tùy thuộc vào số lượng thành viên, lối sống sinh hoạt của gia đình để phân chia không gian cho phù hợp.
Các gia chủ cần nắm rõ nhu cầu này để khi tiến hành thiết kế cũng trở nên dễ dàng, nhanh đỡ phải sửa bản vẽ thiết kế chiếm nhiều thời gian.

Phân chia diện tích từng phòng
Tiếp đến, các gia chủ cần lên phương án phân chia diện tích các phòng sao cho phù hợp với nhu cầu, ví dụ phòng ngủ master nên ưu tiên thiết kế lớn, ở phòng trẻ em nếu nhà diện tích nhỏ có thể cân đối cho phù hợp.
Mặt khác phòng sinh hoạt chung cư phòng khách, phòng ăn, nhà bếp cần kết nối mở hay riêng tư cần phải tính toán và vị trí từng phòng như thế nào để phù hợp, tiện lợi với nhu cầu sử dụng. Dựa vào diện tích đất để có thể lên phương án bố trí nội thất, phân chia không gian cho phù hợp.
Yếu tố phong thủy trong cách bố trí các phòng trong nhà cấp 4
Phong thủy luôn là yếu tố được quan tâm trong thiết kế xây dựng nhà, từ việc hướng nhà cho đến màu sắc đặc biệt là phân chia không gian cũng như sắp xếp các phòng, nội thất trong nhà cấp 4.
Việc bố trí phòng khách, phòng thờ hay phòng bếp cần xem xét yếu tố phong thủy để mang lại may mắn cho gia chủ và các thành viên trong gia đình. Bạn có thể nhờ sự tư vấn của kiến trúc sư công ty thiết kế nhà đẹp để lên phương án thiết kế nhà cấp 4 cho phù hợp với yếu tố thẩm mỹ, công năng cũng như phong thủy.
Trên đó là những lưu ý trong cách bố trí các phòng trong nhà cấp 4 mà các gia chủ cần nắm rõ. Việc nắm rõ nhu cầu, diện tích cũng như lối sống sinh hoạt của gia đình từ đó lên phương án thiết kế, bố trí nội thất sẽ hợp lý, tối ưu diện tích và tiết kiệm thời gian, quá trình thi công cũng trở nên dễ dàng hơn.
Ngoài ra việc lên ý tưởng, thiết kế hay phân chia không gian trong nhà cấp 4 giúp bạn dễ dàng hình dung ngôi nhà tương lai của mình hơn.
Tham khảo cách bố trí các phòng trong nhà cấp 4
Dưới đây EHOME sẽ đưa ra những mẫu bố trí các phòng trong nhà cấp 4 để các gia chủ có thể tham khảo. Nhà cấp 4 mái thái, nhà cấp 4 chữ l với nhiều diện tích khác nhau.
Bản vẽ nhà cấp 4 2 phòng ngủ
Nhà cấp 4 2 phòng ngủ là một trong những mẫu nhà được xây dựng phổ biến, dưới đây là cách bố trí mà bạn có thể tham khảo.

Nhìn vào bản vẽ có thể tháy, nhà cấp 4 được thiết kế phòng khách và bếp, phòng ăn liền kề với nhau mang đến không gian ăn uống, sinh hoạt các thành viên trong nhà dễ dàng, trong khi đó 2 phòng ngủ được bố trí ở phía sau nhằm đảm bảo sự riêng tư và yên tĩnh.
Cách bố trí 2 phòng ngủ, 1 phòng thờ nhà cấp 4


Một trong những cách bố trí các phòng trong nhà cấp 4 mà bạn có thể tham khảo. Đối với những nhà có diện tích bề ngang tương đối rộng có thể bố trí phòng khách, phòng thờ như trên đảm bảo phong thủy, trong khi đó bếp và phòng ăn gắn liền với sân sau đảm bảo sự thông thoáng.
Bản vẽ mặt bằng nhà cấp 4 hình chữ l có 3 phòng ngủ

Mẫu nhà cấp 4 hình chữ L được ưa chuộng khi mang đến không gian thông thoáng, nhiều cửa hơn và tạo ra góc sân để đậu xe, thư giãn cũng rất tốt. Nhìn vào bản vẽ này có thể thấy, phòng khách được bố trí ở cửa chính, phòng ngủ được thiết kế đan xen và bếp được bố trí ở phía sau.
Bản vẽ nhà cấp 4 3 phòng ngủ 1 phòng thờ

Đối với những nhà cấp 4 có diện tích lớn thì có thể lên phương án bố trí các phòng như trên. Theo đó phòng khách ở cửa chính liền với phòng thờ, trong khi đó các phòng ngủ được bố trí xung quanh, cách bố trí này tạo điều kiện cho việc sinh hoạt, sum họp gia đình cũng trở nên dễ dàng hơn.
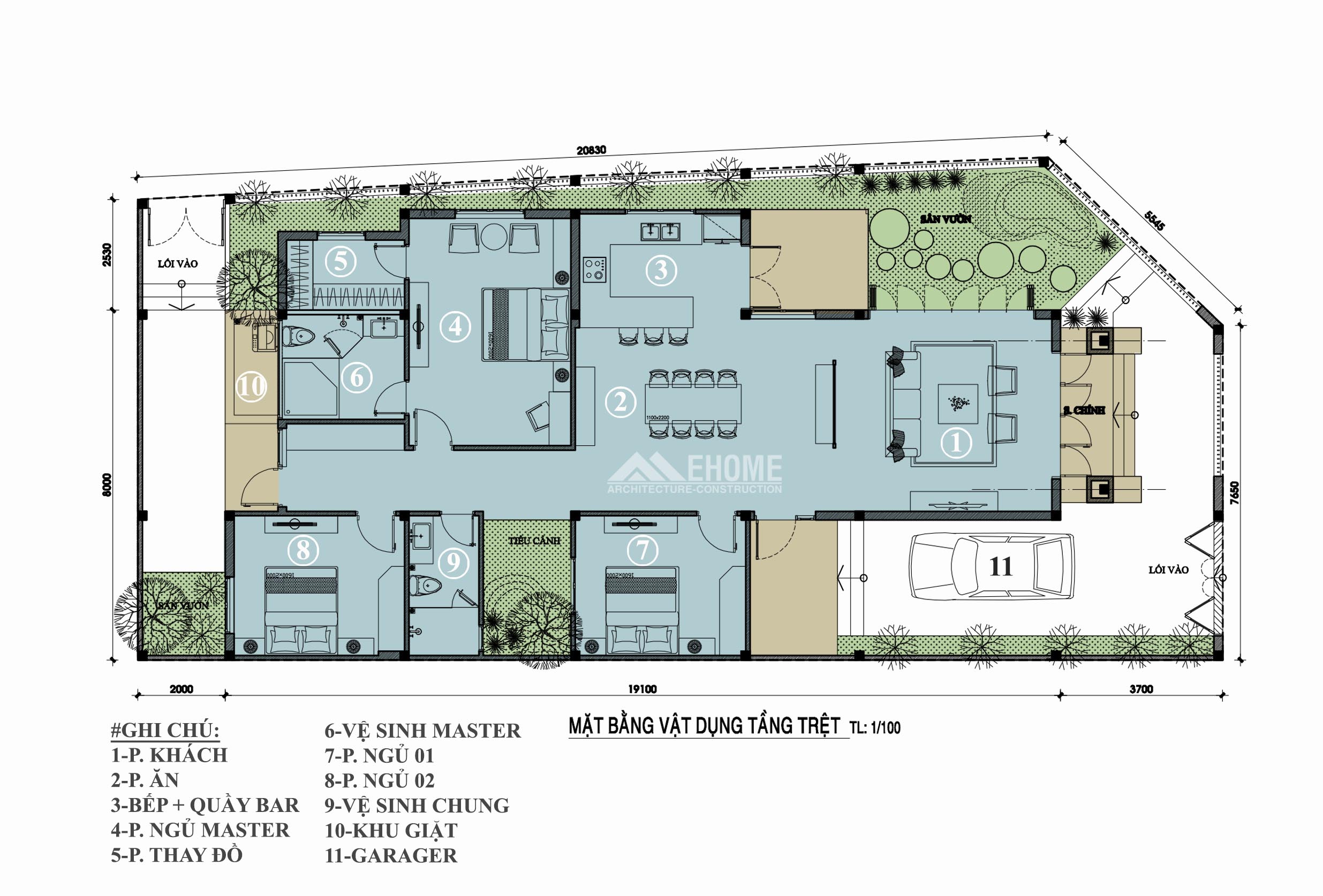
Cách bố trí các phòng trong nhà cấp 4 4 phòng ngủ

Đối với gia đình nhiều thành viên, cần đến sự riêng tư thì cách bố trí phòng ngủ này sẽ là một ý tưởng không thể bỏ qua. Các phòng được bố trí hợp lý đảm bảo sự riêng tư và có nhiều không gian sinh hoạt chung để có thể dễ dàng sum vầy, thư giãn.
Bản vẽ mặt bằng nhà cấp 4 có gác lửng


Đối với những nhà cấp 4 có diện tích hạn chế về chiều dài thì phương án tầng lửng được đưa ra nhằm mang đến không gian sinh hoạt rộng rãi và riêng tư. Theo đó phòng ngủ được bố trí trên tầng lầu, không gian sinh hoạt chung được bố trí ở dưới.
Trên đó là những phương án và cách bố trí các phòng trong nhà cấp 4 mà bạn có thể tham khảo để lên một phương án phù hợp với nhà mình. Nếu bạn vẫn còn băn khoăn hay có nhu cầu thiết kế thi công xây dựng nhà cấp 4 đẹp, nhà phố, biệt thự sang trọng hãy liên hệ tới EHOME để được tư vấn miễn phí nhé.
===> Xem thêm: Cách tính chi phí xây nhà cấp 4 trọn gói 2023 đầy đủ chi tiết
