Biệt thự 3 tầng 5 phòng ngủ, một không gian sống đủ đầy với nhiều không gian riêng tư phù hợp với gia đình nhiều thành viên, hơn thế với kiến trúc 3 tầng, biệt thự toát lên được nét đẹp sang trọng, quyền quý và thể hiện đẳng cấp của gia chủ.
Ehome xin giới thiệu bản vẽ thiết kế biệt thự 3 tầng hiện đại với 5 phòng ngủ sở hữu kiến trúc bên ngoài thanh thoát sang trọng, mặt bằng bố trí phù hợp cùng nội thất đầy đủ tiện nghi để gia chủ có thể tham khảo:
Ngoại thất biệt thự 3 tầng 5 phòng ngủ hiện đại đẹp

Biệt thự 3 tầng 5 phòng ngủ gây ấn tượng cho người nhìn với nét đẹp hiện đại và tinh tế. Bức tường được tối giản với màu trắng nhẹ nhàng điểm thêm những mảng tường giật cấp làm điểm nhấn mà không quá nặng nề hay đơn điệu.

Sự khéo léo, sáng tạo đã mang đến mặt tiền nổi bật. Hơn thế phần mái Nhật được thiết kế so le, đua ra ở từng tầng lầu để làm điểm nhấn vừa giúp ngôi nhà trở nên mát mẻ hơn, tránh tình trạng hắt nắng, mưa vào bên trong.

Biệt thự 3 tầng thiết kế mái Nhật với độ dốc vừa phải giúp quá trình thoát nước nhanh chóng vừa đảm bảo sự mát mẻ bên trong ngôi nhà. Màu sắc của mái cũng hài hòa với toàn bộ kiến trúc tạo nét thẩm mỹ cao.Nhìn từ trên cao xuống có thể thấy biệt thự 3 tầng chừa một khoảng trống xung quanh tạo làm tiểu cảnh sân vườn, và một khoảng sân thượng trên tầng 3 cung cấp chỗ thư giãn, nghỉ ngơi lý tưởng cho các thành viên trong gia đình.
Bản vẽ mặt bằng thiết kế biệt thự 3 tầng 5 phòng ngủ
Trước khi lên bản vẽ mặt bằng chi tiết biệt thự 3 tầng 5 phòng ngủ, kiến trúc sư đã bàn bạc kỹ lưỡng cùng gia chủ, nắm rõ yêu cầu, diện tích cũng như yếu tố phong thủy để đưa ra phương án phù hợp nhất mang đến một không gian thư giãn, thoải mái, riêng tư và tối ưu diện tích một cách hiệu quả nhất.
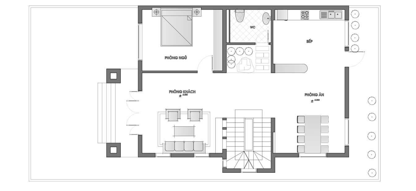
Mặt bằng tầng trệt biệt thự 3 tầng 5 phòng ngủ

Tầng trệt gồm: Phòng khách, phòng ăn, phòng ngủ, bếp, WC
Phòng khách được bố trí gần cửa chính, trong khi đó phòng ăn và bếp được bố trí ở phía sau tạo ra sự riêng tư. Không gian sinh hoạt chung được thiết kế không gian mở, liên kết không gian mặt khác giúp cho quá trình ăn uống, thư giãn được tốt nhất.
1 Phòng ngủ được bố trí ở dưới tầng trệt để giúp cho quá trình nghỉ ngơi được tiện lợi, phù hợp cho ông bà.
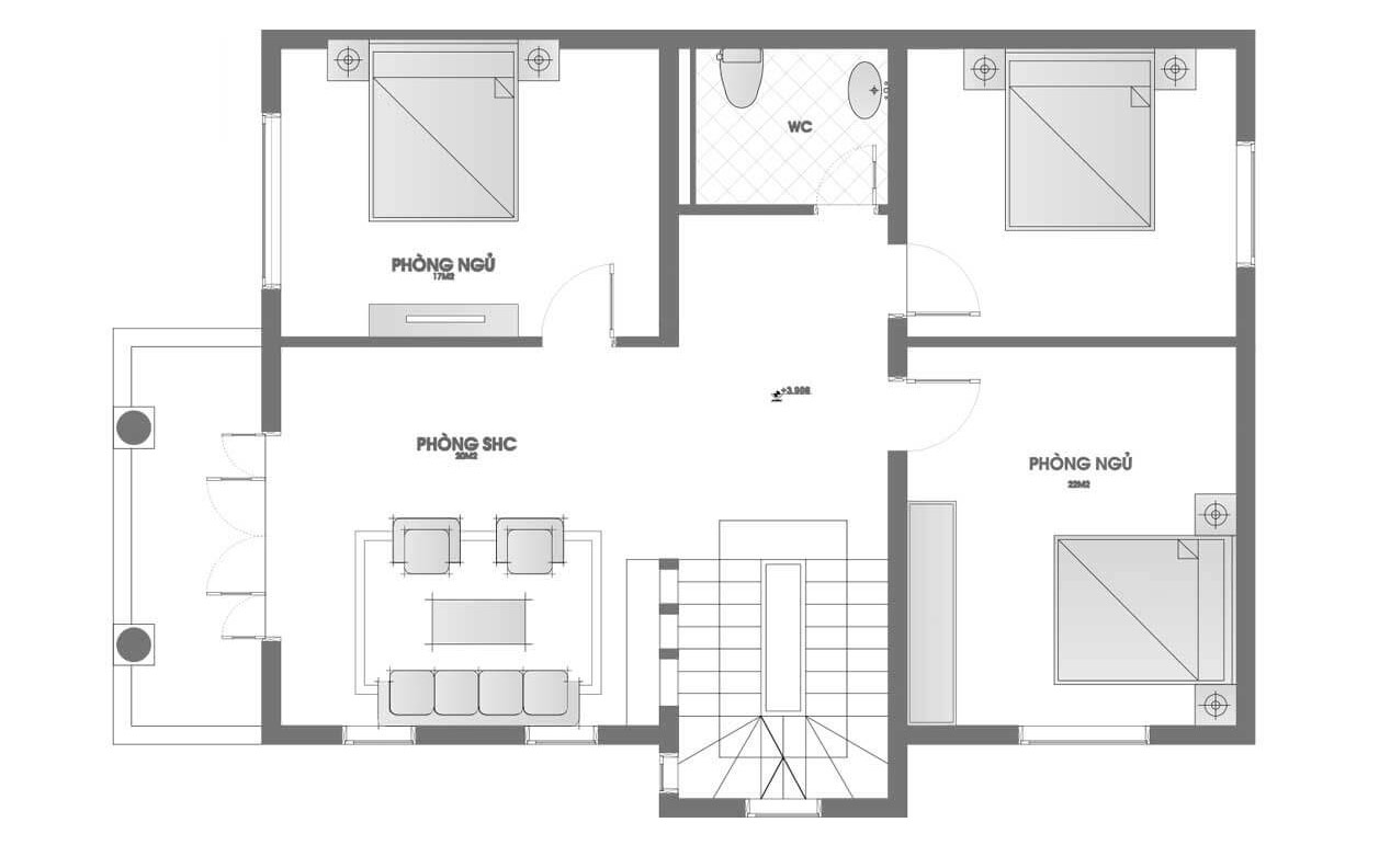
Mặt bằng lầu 1 biệt thự 3 tầng 5 phòng ngủ

Lầu 1 gồm: 3 Phòng ngủ, phòng sinh hoạt chung
1 phòng sinh hoạt chung được bố trí ở trên lầu giúp các thành viên gia đình có nhiều không gian kết nối, thư giãn.
3 phòng ngủ được sắp xếp nội thất hợp lý, tùy thuộc vào vị trí, diện tích, hướng mà kiến trúc sư đặt để nội thất cho phù hợp.
Mặt bằng lầu 2 biệt thự 3 tầng 5 phòng ngủ

Lầu 2 gồm 2 sân phơi tạo nên sự thông thoáng, phòng thờ hướng cửa ra bên ngoài phù hợp với phong thủy, trong khi đó 1 phòng ngủ đầy riêng tư với những cửa sổ giúp đón ánh sáng thiên nhiên từ bên ngoài vào trong được tốt nhất.
Thiết kế nội thất biệt thự 5 phòng ngủ 3 tầng hiện đại
Thiết kế biệt thự đẹp với không gian bừng sáng với nội thất gỗ tự nhiên cao cấp, sắp xếp khoa học cũng như màu sắc hài hòa đã mang đến “chốn” trở về lý tưởng cho các thành viên trong gia đình.

Phòng khách với bộ bàn ghế sofa bằng gỗ óc chó, nệm ghế cao cấp, kệ tủ tivi gắn liền với đèn led giúp căn phòng trở nên lung linh hơn.

Tối giản về nội thất cũng như phụ kiện trang trí nhưng không vì thế mà phòng khách biệt thự 3 tầng trở nên đơn điệu vì kiến trúc sư đã nhấn nhá những chiếc kệ cũng như trang trí khu vực cầu thang với những tiểu cảnh thiên nhiên, bức tranh cho không gian trở nên sinh động hơn rất nhiều.

Khu vực bếp và phòng ăn được kết nối mở với phòng khách, các nội thất cũng như màu sắc được kết nối hài hòa sang trọng.

Phòng ăn với bộ bàn ghế gỗ sang trọng, trần được trang trí thêm đèn cùng với kệ tủ tivi mang đến những giây phút ăn uống đầy thư giãn. Trong khi đó tủ bếp với hình chữ U, thiết kế thông minh với những kệ tủ, thiết kế kệ ly… mang đến một không gian bếp tiện nghi, một nơi nấu nướng, thưởng thức ẩm thực tuyệt vời

Chất liệu bằng gỗ tiếp tục được sử dụng trong thiết kế nội thất phòng ngủ mang đến sự ấm áp cho căn phòng. Nội thất được sắp xếp gọn gàng đặc biệt tủ quần áo làm bằng kính, thiết kế sát trần tăng không gian lưu trữ, tối ưu diện tích giúp căn phòng thêm sang.

Với sự khô khan của nội thất gỗ thì rèm cửa 2 lớp giúp người nhìn cảm nhận được sự mềm mại, tinh tế.
Sự đồng nhất về màu sắc cũng như nội thất giúp gia chủ có một nơi thư giãn tuyệt vời sau những ngày dài làm việc mệt mỏi.

Là căn phòng quan trọng, ngoài yếu tố thẩm mỹ thì phong thủy, văn hóa hay nét đẹp truyền thống luôn được cân nhắc kỹ lưỡng. Kiến trúc sư đã tỉ mỉ trong từng chi tiết, hoa văn trang trí, nội thất cũng như ánh sáng để phòng thờ biệt thự 3 tầng 5 phòng mang tính thẩm mỹ, ấm cúng và trang nghiêm.
Có thể thấy rằng, thiết kế biệt thự 3 tầng 5 phòng ngủ không chỉ dừng lại ở nét đẹp hiện đại mà còn tinh tế và sang trọng. Sự tối giản về màu sắc cũng như nội thất không làm cho ngôi nhà đơn điệu khi kiến trúc sư đã khéo léo tạo điểm nhấn vì thế ngôi nhà vừa sang trọng lại vô cùng khoáng đạt.
Hy vọng với mẫu thiết kế biệt thự trên sẽ giúp gia chủ có thêm ý tưởng mới cho ngôi nhà của mình. Nếu cần tư vấn thiết kế biệt thự, thi công xây dựng biệt thự 3 tầng hãy liên hệ tới công ty kiến trúc xây dựng EHOME để được tư vấn miễn phí nhé. Với nhiều năm hoạt động trên thị trường, EHOME không ngừng khẳng định là thương hiệu hàng đầu trong lĩnh vực tư vấn thiết kế, xây dựng nhà ở tại Việt Nam. Sở hữu đội ngũ kiến trúc sư nhiều kinh nghiệm, không ngừng sáng tạo cùng dịch vụ chuyên nghiệp, tận tâm... chúng tôi cam kết mang đến sự hài lòng cho khách hàng, nâng tầm cuộc sống người Việt.
===>Xem thêm: Xây biệt thự cần bao nhiêu m2
