Nhà mái Thái 2 mặt tiền

Ngày đăng: 03:15 AM, 14/03/2020 - Lượt xem: 3.4k

Nhà mái Thái 2 mặt Tiền đẹp tại Huyện Củ Chi

Cùng ngắm mẫu Thiết Kế Nhà Mái Thái 2 Mặt Tiền khách hàng thực tế của Cty Ehome tại Huyện Củ Chi nhé!

 

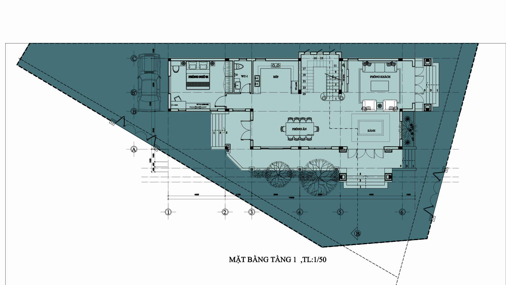
Mẫu nhà Biệt thự 2 tầng mái thái được Chủ nhà chọn xây dựng trên Miếng đất hình Tam Giác, với qui mô 450m2 tiếp giáp với 2 trục đường. Ban đầu A Toản (chủ nhà) cũng tìm kiếm và lựa chọn 3 đơn vị thiết kế để lên phương án bố trí cho Miếng đất hình Tam Giác này, với kinh nghiệm thiết kế dày dạng của anh em Kiến Trúc Sư Cty Chúng tôi đả đưa ra phương án Hoàn hảo cho Anh và gia đình, Giành dược sự Ủy Thác của Anh Toản khi Giao Thiết kế cho Cty Ehome thực hiện.

1- Phương án bố trí công năng quá hợp lí khi sử dụng.

2- Giải quyết Phong Thủy Tốt nhất cho Gia chủ, Hướng cửa chính, Hướng Bếp và Hướng giường Ngủ, hợp với Phong Thủy.

3- Thẩm mỹ cho ngôi Biệt thự 2 tầng mái thái đẹp khi nằm ngay góc 2 trục dường.

 

Mặt tiền Biệt thự 2 tầng mái thái

Góc nhìn từ 2 trục đường chính làm Biệt thự đẹp với mái chính lớn có 3 mái nhỏ làm điểm nhấn kiến trúc.

Tong màu xám nhạt và điểm nhấn chính là bộ cửa Gỗ Căm xe 4 cánh.

Mặt Bằng khu đất hình Tam Giác Nhọn, Là loại khó thiết kế nhất đối với Kiến Trúc sư,

Tầng 2 có 3 phòng ngủ và 1 phòng thờ.

 

Thời gian thiết kế Nhà Mái Thái 2 mặt tiền đẹp được thực hiện trong vòng 1 tháng khi ký Hợp đồng thiết kế.

! Mời các bạn xem thêm mẫu nhà đẹp của chúng tôi ở đây.

Thiế kế biệt thư ở  Nghệ An
Dự án

Thiế kế biệt thư ở Nghệ An

02:30 AM, 07/11/2019
Thiết kế biệt thư ở Nghệ An Địa chỉ: Nghệ An Hạng mục: Thiết kế biệt thự 3 tầng Đơn vị: ehomearch.vn
Thiết kế biệt thự Phú Thọ
Dự án

Thiết kế biệt thự Phú Thọ

02:16 AM, 10/09/2019
Tên dự án: Thiết kế biệt thự Phú Thọ Địa chỉ : Phú Thọ Hạng mục: Thiết kế và thi công Đơn vị thực hiện: ehomearch.vn Năm: 2017
Thiết kế biệt thự sân vườn - Chị Bình
Dự án

Thiết kế biệt thự sân vườn - Chị Bình

11:50 AM, 10/10/2022
Thiết kế biệt thự sân vườn - Chị Bình Địa chỉ: Hồ Chí Minh Hạng mục: Thiết kế thi công biệt thự Đơn vị: ehomearch.vn
BIỆT THỰ 1 TẦNG-3 PHÒNG NGỦ
Dự án

BIỆT THỰ 1 TẦNG-3 PHÒNG NGỦ

11:33 AM, 24/06/2020
#Biệt Thự 1 Tầng - Mái Thái - Phong Cách Hiện Đại #Qui Mô: DT Đất 300m2, DT Xây Dựng 150m2 #Thiết kế Mẫu Khu Dân Cư Hoa Đào - Bình Phước #Địa điểm: Phước An - Hớn Quản -Bình Phước